"An der Schule", Wachau

Die Gemeinde Wachau liegt ca. 20 km vom Stadtzentrum Dresdens entfernt im südwestlichen Landkreis Bautzen und ist ein wunderbarer Ort, um dem hektischen Stadtleben zu entfliehen. Mit seiner idyllischen Lage inmitten der Natur bietet Wachau seinen Bewohnern eine hohe Lebensqualität. Die Gemeinde ist gut angebunden und dennoch beschaulich, was sie zu einem attraktiven Wohnort macht.

Als Oase inmitten der Natur bietet das Seifersdorfer Tal, als einer der ältesten deutschen Landschaftsgärten, nicht nur Raum für Ausflüge und Wanderungen, sondern auch zum Verweilen und Entspannen. Hier kann man die Schönheit der Natur in vollen Zügen genießen und den Alltagsstress hinter sich lassen. Der Landschaftsgarten ist ein beliebtes Ausflugsziel für Einheimische und Touristen gleichermaßen.

Für alle Fahrradliebhaber gibt es in Wachau ein wahres Paradies. Thematische Radwanderrouten durchqueren die gesamte Gemeinde und bieten eine wunderbare Möglichkeit, die Umgebung zu erkunden. Ob gemütliche Radtouren entlang der Flüsse und Seen oder anspruchsvolle Mountainbike-Strecken durch die Wälder - hier ist für jeden Geschmack etwas dabei.

Wachau ist also nicht nur ein Ort zum Wohnen, sondern auch ein Ort zum Erleben und Entdecken. Die Kombination aus Natur, Kultur und Freizeitmöglichkeiten macht die Gemeinde zu einem attraktiven Ziel für Menschen, die eine hohe Lebensqualität suchen.

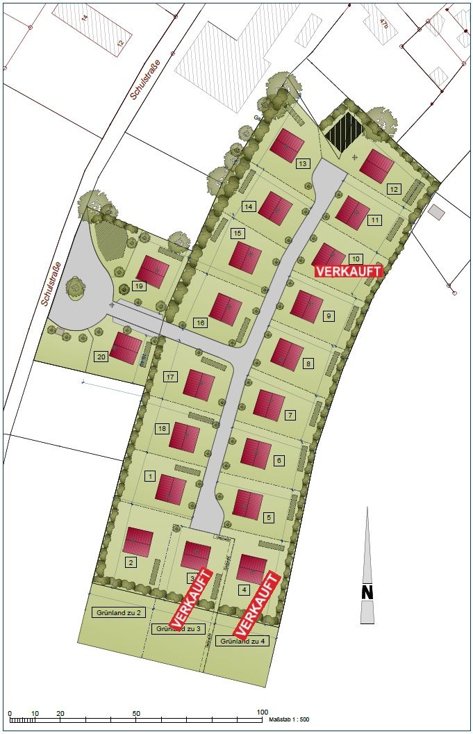
Status B-Plan rechtskräftig, Erschließung abgeschlossen
Lage Wachau
Fläche 13.200 m²
Bauplätze 20 Bauplätze (18 Bauparzellen IWS,
2 Bauparzellen für die Gemeinde Wachau)
Größen ø 725 m², zwischen 650 bis 1.050 m²
Besonderheiten Voll erschlossen (Privatstraße), bauträgerfrei
Blick durch Baumäste auf Landschaft Wachau

Ansprechpartner

Mitarbeiterbild Ringo Wiedemann

Herr Ringo Wiedemann

mail

tel 0351/ 211 798-07